APPROVATA LA VARIANTE N.44 AL PIANO REGOLATORE COMUNALE
COSA CAMBIA, COSA MIGLIORA ZONA PER ZONA IN MANIERA CHIARA, SEMPLICE ED INTUITIVA.
La politica ha anche questo compito: raccontare quello che viene fatto in maniera comprensibile per tutti. A tal fine ritengo utile tentare questo percorso cercando di raccontarvi la variante n.44 al piano regolatore in modo chiaro, semplice ed intuitivo.
Dopo avere ampiamente parlato della ripianificazione delle aree poste alla foce del Corno e delle nuove zone “A0” del centro storico e di Chiarisacco, ci dedicheremo alla parte più green, più sostenibile della variante.
L’ambiente sia nell’aspetto naturale, sia nell’aspetto assunto attraverso le successive trasformazioni storiche, è di interesse pubblico.
Qualsiasi progetto di strumento urbanistico e qualsiasi intervento comportante trasformazione urbanistica ed edilizia del territorio deve adeguarsi a questo principio.
Prima di entrare negli aspetti di dettaglio vi rubo qualche minuto per darvi degli elementi di carattere generale sullo stato del territorio di San Giorgio di Nogaro dopo le due Varianti 43 e 44 al piano regolatore sviluppate in questi ultimi 4 anni. Per capire meglio vediamo San Giorgio dall’alto evidenziando in varie tonalità di verde le aree non urbanizzate:
Un po’ sorpresi vero? Non è proprio così scontato vedere che, nella nostra antropizzata ed urbanizzata cittadina, così tanto “suolo” è destinato ad aree agricole, boschive, prative, naturali e fluviali. Contrasta sicuramente – in positivo – con la vocazione storica di San Giorgio, ossia quella di “cittadina industriale” attraversata, o meglio “tagliata” orizzontalmente dalla SR14 e dalla tratta ferroviaria VE-TS, e verticalmente dalla SP80 e dal raccordo ferroviario che va a sud verso il porto commerciale e la zona industriale Aussa-Corno. Una croce infrastrutturale significativa sotto vari punti di vista, in soli 26 km quadrati di territorio comunale.
Qui di seguito, per maggior chiarezza, i numeri in percentuale dell’incidenza delle varie “macrozone” sui 26 km quadrati di San Giorgio di Nogaro:
- circa il 57% è destinato ad aree “green” (agricoltura, boschi, prati, parchi, giardini,fiumi);
- circa il 28% è destinato a zona industriale e artigianale;
- circa il 9% è destinato ad aree residenziali;
- circa il 2% è destinato ad aree per nautiche da diporto;
- solo lo 0,30% per le aree commerciali
- il restante 3% sono viabilità, interscambi, edifici ed aree pubbliche, vita associativa, sanità, istruzione, ecc.
Dati davvero interessanti, dati fondamentali per continuare a correggere e migliorare gli strumenti urbanistici pianificatori. Il fascino dell’urbanistica è anche quello di levarsi metaforicamente in volo e fotografare dall’alto un’area vasta cogliendo tutte le sue complessità.
Peraltro questa dovrebbe essere un’azione basilare che ogni politico e amministratore dovrebbe sforzarsi di fare al fine di pensare, progettare ed attuare politiche a 360° utili e concrete in sinergia con l’intero territorio comunale.
Fatte queste debite premesse vediamo ora come abbiamo operato per riuscire a centrare l’obiettivo di rispettare il principio del “lasciare un posto migliore di come l’abbiamo trovato”. Non possiamo tuttavia fermarci qui, poiché le zone ambientalmente “critiche” sul nostro territorio purtroppo non mancano.
Cosa cambierà ora? Quali i miglioramenti?
1. Riduzione del CONSUMO DI SUOLO:
in 4 anni, con due Varianti al PRGC di San Giorgio di Nogaro, si è apportata una riduzione di consumo di suolo di oltre 13 ettari (più di 130.000 mq) diminuendo di quasi il 6% le aree edificabili residenziali (l’incidenza di tali aree passa dal 9% all’8%) e di oltre l’1,5% la superficie complessiva di aree urbanizzate (quindi la somma di tutti i punti sopra dal 2 al 6). La riduzione di aree edificabili è in se un elemento positivo, riconosciuto da tutti, questo dato però non è frutto solo dell’iniziativa dell’Amministrazione, ma si deve leggere anche come esito di un evoluzione strutturale e congiunturale a livello generale. Parlo della crisi economica ma anche dell’evoluzione socio-culturale, delle problematiche legate ai cambiamenti climatici. Questo insieme di fattori ha ulteriormente sensibilizzato l’opinione pubblica ed i cittadini, rendendo di fatto necessario ed obbligatorio finalmente pensare in modo diverso il territorio e l’ambiente: puntare sulla rigenerazione e sul recupero, capire valutare con intelligenza le esigenze dei privati, venire incontro ai piccoli investitori ed alle piccole imprese, dando qualità massima agli interventi.
2. Nuovi criteri e prescrizioni per un’edilizia più sostenibile:
Per tutte le opere di costruzione e/o ristrutturazione dovranno essere utilizzati beni e servizi che rispettino l’ambiente promuovendo gli appalti verdi, privilegiando il riciclo o il riutilizzo dei materiali impiegati.
Gli indirizzi per la realizzazione degli interventi dovranno garantire una relazione coerente tra opera e sito e in particolare prevedere:
- USO RAZIONALE DELL’ENERGIA
Gli edifici e gli impianti dovranno essere progettati in maniera tale da garantire un uso razionale dell’energia nel tempo. Saranno da preferire soluzioni progettuali:
– realizzate secondo principi bioclimatici (valutazione dei caratteri fisici del sito, venti dominanti, esposizione solare, ecc orientamento spaziale dell’edificio, edificazione in forme compatte, raggruppamento ambienti per funzioni, ecc);
– che perseguano criteri di contenimento consumi energetici con ottimizzazione del guadagno solare, ombreggiature facciate esposte, ventilazione naturale, ecc;
– che utilizzino energie rinnovabili (solare termico e fotovoltaico, ecc). - GESTIONE DEL CICLO DELL’ACQUA
Gli edifici e gli impianti dovranno essere progettati in modo da:
– utilizzare, per quanto possibile, sistemi di recupero dell’acqua piovana con separazione dell’utilizzo dell’acqua ad uso potabile dall’acqua a uso industriale, irriguo, ecc
– utilizzare coperture con tetti verdi;
– perseguire un tendenziale azzeramento del bilancio idrico all’interno dell’area di pertinenza degli edifici, con lo scopo di ridurre al minimo l’apporto di acqua di pioggia in fognatura, attraverso accorgimenti tecnici e naturali finalizzati al recupero. - GESTIONE DELL’IMPATTO AMBIENTALE DEI MATERIALI
Saranno da preferire materiali:
– che non alterino la qualità dell’aria (polveri, particelle di fibre, composti organici volatili, ecc)
– che non risultino tossici per la salute, derivanti da fonti rinnovabili, riciclabili, a bassa energia incorporata, ecc
– dotati di certificazione ambientale;
– che assicurino un corretto ciclo di vita del prodotto (LifeCycle Assessment) promuovendo l’utilizzo di prodotti innovativi ottenuti utilizzando materiale riciclato o facilitando il processo di riciclo. - RELAZIONE ECOSISTEMICA E DI EFFICIENZA GESTIONALE
I progetti degli edifici e gli impianti dovranno essere corredati da una relazione ecosistemica che, esplicitando logiche e criteri adottati, consenta di evidenziare il costo energetico/ambientale dell’intervento, con l’obiettivo della migliore valutazione del costo collettivo degli interventi. La relazione conterrà anche i bilanci relativi all’utilizzo delle risorse, individuando i limiti massimi di consumo, secondo le indicazioni che seguono:
l) Energia: bilancio dei flussi energetici entranti e uscenti dall’edificio;
2) Acqua: bilancio preventivo del consumo dell’acqua contenente la percentuale dell’utilizzo dell’acqua piovana (filtrata naturalmente o depurata), la percentuale di acque grigie recuperate, i consumi di acqua potabile, il volume di acque grigie/nere da mandare in fognatura;
3) Aria: valutazione delle concentrazioni degli inquinanti noti e indicazione dello scostamento dai valori limite, sia per l’aria esterna, sia per l’aria interna.
3. Nuovi indici Ecologico-Ambientali per le aree scoperte nelle zone residenziali, commerciali ed artigianali:
- Per tutti gli interventi di nuova edificazione o di ristrutturazione, all’interno delle zone B0, B1, B2, B3, B*, C, H3 e D3 le aree scoperte non utilizzate per viabilità o altre funzioni compatibili dovranno essere trattate a verde (prato e prato alberato) e dovranno rispettare i seguenti indici e parametri:
Indice di permeabilità = superficie permeabile/superficie fondiaria >50%;
Indice di verde privato = superficie a verde/superficie fondiaria >50%;
Densità arborea= Numero alberi per superficie scoperta a verde ogni 100 mq di area scoperta
Densità arbustiva= Numero arbusti per superficie scoperta a verde.
Le aree a prato saranno intercalate da aree arboreo-arbustive costituite da essenze autoctone almeno per l’80%.
Il sesto d’impianto per le aree arboreo-arbustive sarà costituito da: filari di piante arboree con interasse di mtl. 10,00, distanza tra le fila di mtl 3,00, corrispondente a una densità di impianto di n°1 pianta arborea ogni 30,00 mq, e altezza media di m 2,00 all’impianto e da almeno tre filari di piante arbustive di altezza media all’impianto di m 1,00, con una densità minima d’impianto di n°1 pianta arborea ogni 4,00 mq. - Gli orti a uso privato e non commerciale possono essere considerati facenti parte dell’area a verde fino alla superficie del 50% dell’intera area a verde.
- Il progetto della sistemazione delle aree scoperte e la verifica degli indici faranno parte del titolo abilitativo e l’agibilità può essere rilasciata solo previa verifica dell’avvenuta sistemazione. La realizzazione e la manutenzione nel tempo degli interventi a verde dovranno impegnare il privato con apposito atto tra quest’ultimo e Amministrazione.
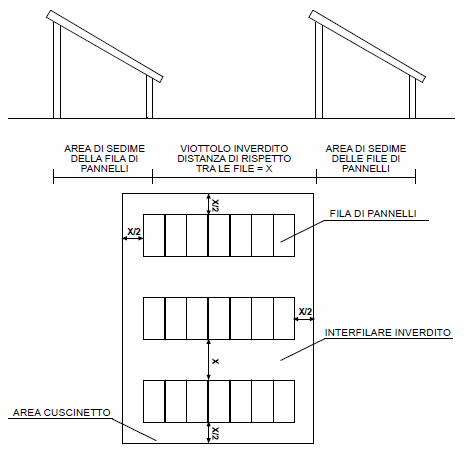
4. Prescrizioni per la localizzazione di impianti a solare fotovoltaico in zone agricole
Il lotto minimo per l’installazione degli impianti fotovoltaici, di potenza maggiore a 40 KW, dovrà essere di Ha 1. La superficie non occupata dall’impianto dovrà essere destinata esclusivamente ad uso agricolo. In zona agricola gli impianti dovranno rispettare precisi schemi illustrativi:

Le recinzioni dei lotti interessati e quelle a confine di altra proprietà, dovranno essere sistemate in modo tale da non arrecare danno al sistema geomorfologico da un punto di vista strutturale e da non creare impatto visuale. Esse dovranno essere realizzate con strutture leggere debitamente mascherate con vegetazione di tipo autoctono, in rete metallica o, comunque, a giorno, a maglia larga al fine di favorire il passaggio della piccola fauna, impiantate su cordoli emergenti m 0,30 dal suolo, con un’altezza massima totale di m 2,50. Solo sul lato di ingresso principale la recinzione potrà essere realizzata con muratura e sovrastante rete metallica per una altezza massima di m 2,50. Le infrastrutture (cabine elettriche), la viabilità e gli accessi indispensabili alla costruzione e all’esercizio dell’impianto dovranno essere esclusivamente quelle strettamente necessarie al funzionamento dell’impianto stesso, a tale scopo dimensionate, la cui conformità sarà valutata in sede di istruttoria tecnica d’ufficio. Al fine di garantire un corretto ritorno alla vocazione agricola dei terreni dovranno essere garantite modalità per una facile rimozione degli impianti quali: realizzazione su plinti leggeri, divieto di realizzare platea in calcestruzzo sotto i panelli, sfalcio meccanico delle aree verdi sottostanti i pannelli con divieto prativa del diserbo chimico
Infine gli elementi di carattere ambientale del piano regolatore confermati e rafforzati:
- Aree di tutela naturalistica Parco intercomunale fiume Corno: Ruolo insostituibile di equilibrio ambientale quello svolto dai fiumi. Prevedere l’attuazione degli interventi previsti dal Parco Intercomunale del Corno e Corgnolizza. Tutelare l’ambiente naturale planiziale così come individuato dagli strumenti sovraordinati. Ad esempio la zona del bosco a ovest della D1 che necessita di livelli di tutela ampi attraverso la formazione di una zona di pre-parco, normando in modo preciso le tipologie delle attività agricole ammissibili. Ampliamento della zona boschiva con essenze
- Aree agricole di decelerazione trasformativa Costituire aree di decelerazione trasformativa tra la zona industriale D1 e le aree di tutela naturalistica. Prevedere una fascia di rispetto tra gli insediamenti industriali e la zona di tutela ambientale con norme di massima tutela che preservino i valori presenti. Definire norme/regole insediative che consentano il completamento degli insediamenti industriali d’interesse regionale esistenti tenendo conto della tutela delle limitrofe aree naturalistiche.
- Preservare l’ambiente naturale della Laguna rispetto alla zona industriale-artigianale D1, consentendo le funzioni compatibili. Stabilire nelle norme della zona D1 una fascia di rispetto degli insediamenti industriali per tutelare l’ambito della laguna. la destinazione prevalente di salvaguardia e valorizzazione ambientale.
- Zone di protezione ambientale. Sono quelle zone destinate a costituirsi quale elemento di mitigazione ambientale in zone particolarmente sensibili quali: la sponda lagunare e la fascia a nord del fiume Zumello.Le prescrizioni per tali zone sono: fascia a protezione del bordo lagunare: per tale zona è fatto divieto di costruzioni stabili in muratura; è possibile la costruzione di opere di protezione della costa ed opere in legno con altezza massima di m 4,00. Allo stesso modo per la zona a nord dello Zumello per la parte antistante Il fiume sono ammessi solo approdi in legno, fatte salve diverse disposizioni del Piano Regolatore Comunale dei Porti.






